Basement Home Plans: Your Guide To OSC Walkout Designs

A.Manycontent 38 views
Basement Home Plans: Your Guide To OSC Walkout Designs

Basement Home Plans: Your Guide to OSC Walkout Designs

Hey there, home enthusiasts! Ever dreamed of transforming that unused space beneath your feet into a stunning living area? We’re diving deep into the world of basement home plans , specifically focusing on the fantastic possibilities offered by OSC walkout basement designs . This article is your ultimate guide, covering everything from understanding the benefits of a walkout basement to navigating the design process and ensuring your dream home becomes a reality. So, grab your favorite beverage, get comfy, and let’s explore how oscwalkoutsc basement home plans can unlock the hidden potential of your property.

Decoding the Allure of OSC Walkout Basement Designs

Alright, let’s start with the basics, shall we? What exactly makes OSC walkout basement designs so darn appealing? Well, the beauty of a walkout basement lies in its unique ability to blend the indoors with the outdoors. Unlike traditional basements that are mostly underground, a walkout basement is designed with at least one side that opens directly to the outside, typically at ground level. This provides natural light, fresh air, and easy access to your backyard or surrounding landscape. Pretty cool, huh?

This design offers a plethora of advantages that go beyond just aesthetics. First off, it significantly increases the livable square footage of your home. Imagine adding a guest suite, a home theater, a gym, or even a complete apartment—all without expanding your home’s footprint upward. It’s like getting extra space without the hassle (and cost) of building an addition. Plus, the extra light and ventilation that walkout basements provide can make the space feel much less like a basement and more like a regular living area. No more musty smells or the feeling of being closed off from the world!

OSC walkout basement designs also boost your property value. A well-designed walkout basement is a major selling point for potential buyers. It adds versatility and functionality to your home, making it more attractive in a competitive market. Think about it: a finished walkout basement can be a game-changer for families, offering separate living spaces for teenagers, in-laws, or even rental income potential. And let’s not forget the added value from the increased energy efficiency, thanks to improved insulation and natural light. So, when considering oscwalkoutsc basement home plans , you’re not just adding space; you’re investing in your home’s future.

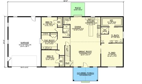
Now, let’s talk about the design possibilities. Walkout basements open the door to a world of creative options. You can create a seamless indoor-outdoor flow by incorporating a patio, deck, or even a covered porch that leads directly from your basement. This makes entertaining a breeze and allows you to enjoy the outdoors year-round. You can also design a separate entrance, providing privacy for guests or tenants. The layout can be tailored to suit your specific needs and lifestyle, whether you’re looking for a cozy retreat or a high-energy entertainment hub. From modern minimalist to rustic charm, oscwalkoutsc basement home plans offer the flexibility to bring your vision to life. So, are you excited yet? Because we are!

Key Considerations for Planning Your Walkout Basement

Alright, before you get too carried away with the fun stuff, let’s talk about the practicalities of planning your oscwalkoutsc basement home plans . Creating a walkout basement isn’t as simple as digging a hole and slapping on a door (though wouldn’t that be nice?). Several key factors must be considered to ensure a successful project. Let’s break them down, shall we?

First and foremost, you need to assess your property’s suitability. Not every lot is ideal for a walkout basement. You’ll need a sloping lot that allows for the lower level to open to the outside. The slope should be gentle enough to ensure proper drainage and prevent water from entering the basement. The surrounding landscape, including the location of trees, utilities, and existing structures, will also play a role in determining the feasibility of your project. A professional site assessment by a qualified architect or engineer is highly recommended. They can evaluate the soil conditions, topography, and any potential challenges specific to your property.

Next up, you’ll need to navigate the permitting process. Building a walkout basement typically requires obtaining permits from your local authorities. This involves submitting detailed plans, complying with building codes, and undergoing inspections throughout the construction process. The specific requirements vary depending on your location, so it’s essential to research the local regulations and work closely with experienced professionals who are familiar with the process. They can help you prepare the necessary documentation, ensure your plans meet code requirements, and guide you through the permitting process smoothly. Don’t underestimate the importance of this step, guys; failing to obtain the proper permits can lead to costly delays and even legal issues down the road.

Budgeting is another critical aspect. Oscwalkoutsc basement home plans can be a significant investment, and it’s essential to have a realistic budget in place. The cost of a walkout basement depends on several factors, including the size of the basement, the complexity of the design, the materials used, and the labor costs in your area. Get multiple quotes from reputable contractors and carefully review the details of each bid. Make sure the quote includes all aspects of the project, from excavation and foundation work to finishing touches like flooring, lighting, and plumbing. It’s also wise to include a contingency fund to cover unexpected costs that may arise during construction. Being financially prepared is key to making sure everything goes smoothly!

Finally, think about the design and functionality. What will you use the basement for? How will it connect to the rest of your home? Consider the flow of traffic, the placement of windows and doors, and the overall aesthetic you want to achieve. Do you want a cozy family room, a home office, or a luxurious entertainment space? The design of your walkout basement should reflect your lifestyle and needs. Working with an experienced architect or designer can help you create a functional and visually appealing space that meets your specific requirements. They can also offer valuable insights into maximizing natural light, optimizing the layout, and incorporating energy-efficient features. Remember, your oscwalkoutsc basement home plans should be tailored to you!

Design Ideas and Layout Inspirations for Your Basement

Okay, guys, let’s unleash the creative juices and explore some awesome design ideas for your oscwalkoutsc basement home plans ! The possibilities are truly endless, and with a little inspiration, you can transform your basement into a space you’ll absolutely adore. Let’s dive in.

First, let’s talk about layouts. The layout of your walkout basement will depend on its intended use and your personal preferences. Here are a few popular ideas:

  • Family Room/Entertainment Area: This is a classic choice! Create a cozy space for movie nights, game days, and family gatherings. Include comfortable seating, a large-screen TV, a surround-sound system, and maybe even a bar area or kitchenette. Consider adding a fireplace for added warmth and ambiance.
  • Guest Suite: A walkout basement is perfect for creating a private guest suite. Include a bedroom, a bathroom, and a small living area. Guests will appreciate having their own space, and it can also be a great option for multi-generational living.
  • Home Office: If you work from home, a dedicated home office in your walkout basement can be a game-changer. It provides a quiet, well-lit space away from the distractions of the main living areas. Maximize natural light with large windows and consider adding built-in bookshelves or a custom desk.
  • Home Gym: Fitness enthusiasts, rejoice! A walkout basement is an ideal location for a home gym. The open space and access to natural light create an inviting environment for workouts. Install mirrors, a sound system, and all your favorite exercise equipment.
  • Game Room: For those who love to entertain, a game room is a must-have. Include a pool table, a foosball table, a dartboard, and other fun activities. Add a bar area and comfortable seating for a complete entertainment experience.

Now, let’s talk about design styles. The design style you choose will depend on your personal taste and the overall aesthetic of your home. Here are a few popular styles to consider:

  • Modern: Embrace clean lines, minimalist décor, and a neutral color palette. Use contemporary furniture, sleek lighting fixtures, and large windows to maximize natural light.
  • Rustic: Create a warm and inviting space with natural materials like wood and stone. Use a cozy color palette, exposed beams, and a fireplace to create a rustic ambiance.
  • Industrial: Embrace exposed brick, concrete floors, and metal accents. Use a neutral color palette with pops of color and industrial-style lighting fixtures.
  • Coastal: Create a breezy and relaxed atmosphere with light colors, natural textures, and nautical-themed décor. Use plenty of natural light and consider adding a patio or deck that leads to the backyard.
  • Contemporary: A blend of modern and traditional elements, contemporary designs often feature bold colors, unique artwork, and statement furniture pieces.

Remember, the key is to personalize your space and create a design that reflects your personality and lifestyle. Don’t be afraid to experiment with different ideas and combine elements from different styles. Work with a designer to bring your vision to life, and let your imagination run wild! Your perfect oscwalkoutsc basement home plans are waiting to be realized!

The Construction Process: From Excavation to Finishing Touches

Alright, let’s get down to the nitty-gritty and talk about the construction process for your oscwalkoutsc basement home plans . From the initial excavation to the final finishing touches, there are several key steps involved in transforming your underutilized space into a beautiful and functional living area. Let’s break it down, step by step.

Step 1: Excavation and Foundation Work: This is where the magic (and the mess) begins! The first step involves excavating the soil to create the space for the walkout basement. This will require heavy machinery, so it’s crucial to hire experienced professionals who know how to handle the equipment and ensure the structural integrity of your home. The excavation process should be carefully planned and executed to avoid damaging existing utilities or structures. Next, the foundation walls are constructed. This typically involves pouring concrete footings and walls, ensuring they are properly reinforced to support the weight of the structure and withstand the forces of nature. Waterproofing is essential to protect the basement from moisture. This often involves applying a waterproof membrane to the exterior of the foundation walls and installing a drainage system to direct water away from the foundation. Making sure the foundation is done correctly is the most important part of your oscwalkoutsc basement home plans .

Step 2: Framing and Rough-In: Once the foundation is in place, it’s time to frame the interior walls, install the roof, and create the basic structure of the basement. This involves using lumber to build the walls, partitions, and any other structural elements. The framing must be done accurately to ensure the basement is structurally sound and meets all building code requirements. Next comes the rough-in phase, which involves installing the essential systems for your basement. This includes:

  • Electrical: Running electrical wiring for outlets, lights, and appliances. Installing the electrical panel and ensuring all circuits are properly grounded and safe.
  • Plumbing: Installing the plumbing pipes for bathrooms, kitchens, and other water fixtures. This includes the water supply lines, drain lines, and any necessary venting. Proper plumbing is essential for the functionality of your basement.
  • HVAC: Installing the heating, ventilation, and air conditioning systems. This ensures proper airflow and temperature control in the basement.

Step 3: Insulation and Drywall: After the rough-in phase, it’s time to insulate the basement walls and ceiling to improve energy efficiency and prevent moisture problems. Insulation helps to regulate the temperature in the basement, reducing heating and cooling costs. Once the insulation is in place, drywall is installed to create the interior walls and ceiling. The drywall is then taped, mudded, and sanded to create a smooth surface ready for painting. This stage is where your oscwalkoutsc basement home plans start to become a reality.

Step 4: Finishing Touches: This is where your oscwalkoutsc basement home plans come to life! Now it’s time to add the finishing touches that will transform your basement into a beautiful and functional living space. This includes:

  • Flooring: Installing the flooring of your choice, whether it’s carpet, hardwood, tile, or laminate. Choose flooring that’s durable, moisture-resistant, and aesthetically pleasing.
  • Painting: Painting the walls and ceiling in your desired colors. Consider using a moisture-resistant paint to prevent mold and mildew growth.
  • Trim and Molding: Installing trim and molding to add a decorative touch and finish the edges of the walls and ceilings.
  • Lighting: Installing lighting fixtures, including recessed lights, pendant lights, and wall sconces. Ensure you have adequate lighting for the different areas of the basement.
  • Fixtures and Appliances: Installing fixtures like sinks, toilets, showers, and appliances like refrigerators, stoves, and dishwashers.
  • Doors and Windows: Installing interior doors, exterior doors, and windows. Make sure the windows are energy-efficient and provide adequate natural light.

Step 5: Final Inspection and Move-In: Once all the finishing touches are complete, a final inspection is required to ensure the work meets all building codes and safety standards. Once the inspection is passed, you’re ready to move into your newly finished walkout basement! Enjoy the extra living space and the added value to your home.

Hiring the Right Professionals for Your Project

Alright, let’s talk about the dream team: Hiring the right professionals is absolutely crucial for the success of your oscwalkoutsc basement home plans . This project is a big undertaking, and you’ll need a reliable team of experts to ensure everything goes smoothly. Let’s look at the key players you’ll need on your side.

Architect or Designer: An architect or designer is your key to unlocking your design dreams. They’ll help you develop detailed blueprints and plans that meet your specific needs and comply with local building codes. They can also offer valuable insights into design possibilities, material selection, and cost-saving strategies. Look for an architect or designer with experience in walkout basement designs and a good understanding of your local building codes.

General Contractor: The general contractor is the project manager who oversees the entire construction process. They’re responsible for coordinating all the different trades, managing the budget, and ensuring the project stays on schedule. Choose a general contractor with a proven track record, positive references, and a good understanding of basement construction. They should be licensed, insured, and experienced in oscwalkoutsc basement home plans .

Excavation Contractor: This is the team that handles the excavation work. Make sure they have the proper equipment, experience, and insurance to handle the job safely and efficiently. The excavation process is a critical first step, so you need to choose someone who knows what they’re doing.

Foundation Contractor: The foundation contractor is responsible for building the foundation walls and ensuring they are properly waterproofed. Choose a contractor with experience in foundation work, and make sure they use high-quality materials and techniques to prevent water damage. A solid foundation is vital for your oscwalkoutsc basement home plans .

Subcontractors: Depending on the scope of your project, you’ll also need to hire various subcontractors, such as electricians, plumbers, HVAC technicians, drywall installers, and flooring specialists. The general contractor typically coordinates these subcontractors. Ensure they are licensed, insured, and experienced in their respective trades.

How to Choose the Right Professionals:

  • Get Recommendations: Ask friends, family, and neighbors for recommendations. Word-of-mouth referrals are often the best way to find reliable professionals.
  • Check Credentials: Verify that all professionals are licensed and insured. This protects you in case of any accidents or damages.
  • Review Portfolios: Look at the professionals’ portfolios and past projects. This will give you an idea of their experience, skill, and design style.
  • Get Multiple Quotes: Obtain quotes from several professionals to compare pricing and services. Make sure the quotes include a detailed breakdown of the costs.
  • Check References: Contact the professionals’ references and ask about their experience, quality of work, and communication skills.
  • Read Reviews: Search online for reviews and testimonials from past clients. This can provide valuable insights into the professionals’ reputation and reliability.
  • Communication is Key: Choose professionals who are responsive, communicative, and willing to answer your questions. Clear communication is essential throughout the construction process.

By carefully selecting the right professionals, you can ensure that your oscwalkoutsc basement home plans are brought to life with quality and efficiency, turning your vision into a reality.

Maximizing Your Investment: Boosting Value and Enjoyment

Alright, let’s talk about the final piece of the puzzle: maximizing your investment and enjoying the fruits of your labor! Building oscwalkoutsc basement home plans is more than just adding square footage; it’s about creating a space that enhances your lifestyle and increases the value of your property. So, how do you make the most of this investment?

Design for Resale: While you’re creating a space for yourself, it’s wise to consider the potential resale value of your home. Design your basement with broad appeal in mind. Choose neutral colors, versatile layouts, and high-quality materials that will appeal to a wide range of potential buyers. Avoid overly personalized or niche designs that may limit the appeal of your home.

Prioritize Quality: Don’t skimp on quality when it comes to materials, construction, and finishes. High-quality materials and craftsmanship will not only enhance the aesthetic appeal of your basement but also increase its durability and longevity. This will translate into a higher resale value and reduce the need for future repairs.

Focus on Functionality: Design your basement with functionality in mind. Consider how you’ll use the space and what features will enhance your daily life. Install adequate lighting, create a comfortable and inviting atmosphere, and ensure the space is well-organized and easy to maintain. A functional and well-designed basement will attract more potential buyers and increase the value of your home.

Incorporate Energy-Efficient Features: Adding energy-efficient features, such as energy-efficient windows, insulation, and appliances, can increase the value of your home and reduce your utility bills. Energy-efficient features are becoming increasingly important to homebuyers, and they can significantly increase the appeal of your home in the market.

Consider Legal Egress: Ensure your basement has legal egress, which means it has a safe and accessible way to exit the building in case of an emergency. This typically involves having windows or doors that meet specific size and height requirements. Legal egress is a crucial safety feature that can impact the value of your home.

Add Outdoor Living Space: If your basement opens to the outdoors, consider adding an outdoor living space, such as a patio, deck, or covered porch. This will extend your living space and provide a seamless transition between the indoor and outdoor areas. Outdoor living spaces are becoming increasingly popular, and they can significantly increase the value of your home.

Professional Landscaping: Landscaping can enhance the curb appeal of your home and increase its value. Invest in professional landscaping to create a beautiful and inviting outdoor space that complements your walkout basement. This will increase the overall attractiveness of your property and make it more appealing to potential buyers.

Enjoy Your New Space: Once your oscwalkoutsc basement home plans are complete, don’t forget to enjoy your new space! Make it a place where you can relax, entertain, and create lasting memories. A well-designed and functional basement can significantly improve your quality of life and add value to your home.

By following these tips, you can maximize your investment, increase the value of your home, and enjoy the benefits of your newly finished walkout basement for years to come. Remember, creating oscwalkoutsc basement home plans is an exciting journey, and with proper planning, design, and execution, you can transform your basement into a space that perfectly suits your needs and enhances your lifestyle.

Ready to get started? We hope this guide has given you a solid foundation for your oscwalkoutsc basement home plans journey. Good luck, and happy building!